ВЫСОКОЕ КАЧЕСТВО
Мы заботимся о наших клиентах и гарантируем лучше качество.
НИЗКАЯ ЦЕНА
Мы всегда готовы предложить своим клиентам одни из лучших цен.
МИНИМАЛЬНЫЕ СРОКИ
Постоянно работаем над увеличением скорости выполнения заказов.
СКИДКИ КЛИЕНТАМ
Сотрудничайте с лидером рынка! К нам обратилось уже более 5000клиентов. Большой опыт!
© 2018 Все права защищены.

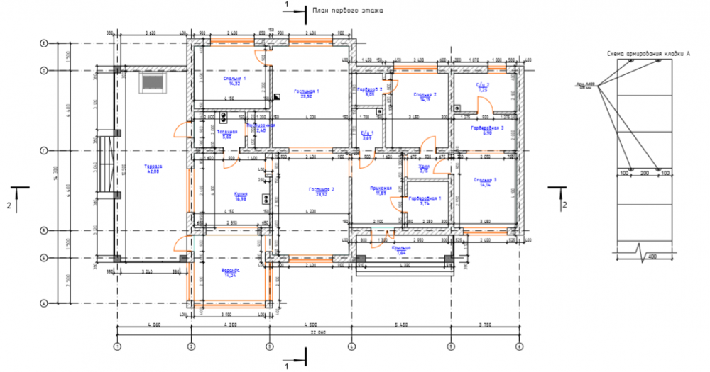
Габариты (размеры): 22.060 м * 14.30м.315.458м2 высотв 2,50
В БАЗОВУЮ КОМПЛЕКТАЦИЮ ВХОДИТ:
1)ЛЕНТОЧНЫЙ ФУНДАМЕНТ
2)СТЕНЫ ИЗ БЛОКОВ ГРАС С АРМИРОВАНИЕМ
3)ПЕРЕГОРОДКИ
4)МОНОЛИТНОЕ ПЕРЕКРЫТИЕ С ДВОЙНЫМ УТЕПЛЕНИЕМ ОКОН,ДВЕРЕЙ
5)МОНОЛИТНЫЙ АРМОПОЯС
6) ОКНА ВХОДНАЯ ДВЕРЬ
7) КРЫША