ВЫСОКОЕ КАЧЕСТВО
Мы заботимся о наших клиентах и гарантируем лучше качество.
НИЗКАЯ ЦЕНА
Мы всегда готовы предложить своим клиентам одни из лучших цен.
МИНИМАЛЬНЫЕ СРОКИ
Постоянно работаем над увеличением скорости выполнения заказов.
СКИДКИ КЛИЕНТАМ
Сотрудничайте с лидером рынка! К нам обратилось уже более 5000клиентов. Большой опыт!
© 2018 Все права защищены.

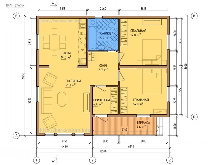
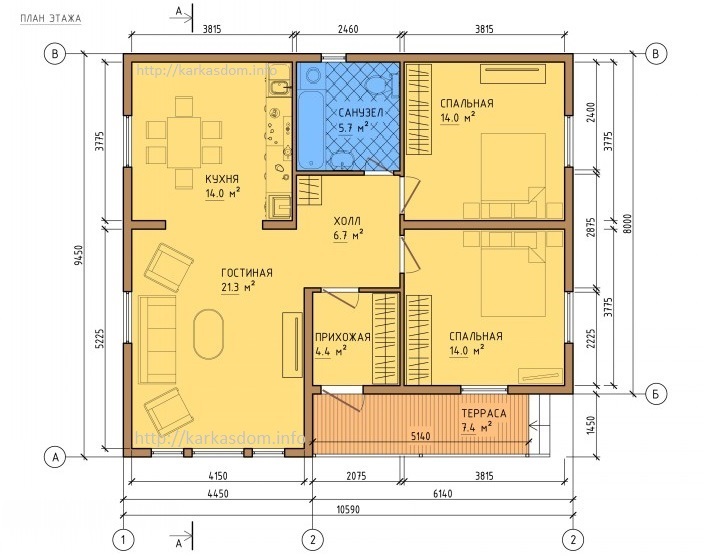
Габариты (размеры): 8(9.5) м х 10.6 м
Площадь: 91 м2
Компактный, но очень комфортный дом с возможностью сезонного отдыха и отдыха зимой. Дом также подойдёт и для постоянного проживания, для этого, можно застеклить крыльцо, хотя можно оставить и так. Тёплый дом 91 м2, 2 спальни с/у и большая гостиная со вторым светом до самого конька крыши и окном второго света.
Отделка дома может быть изменена под ваши предпочтения.